︎
langensteiner bienhaus
architekten
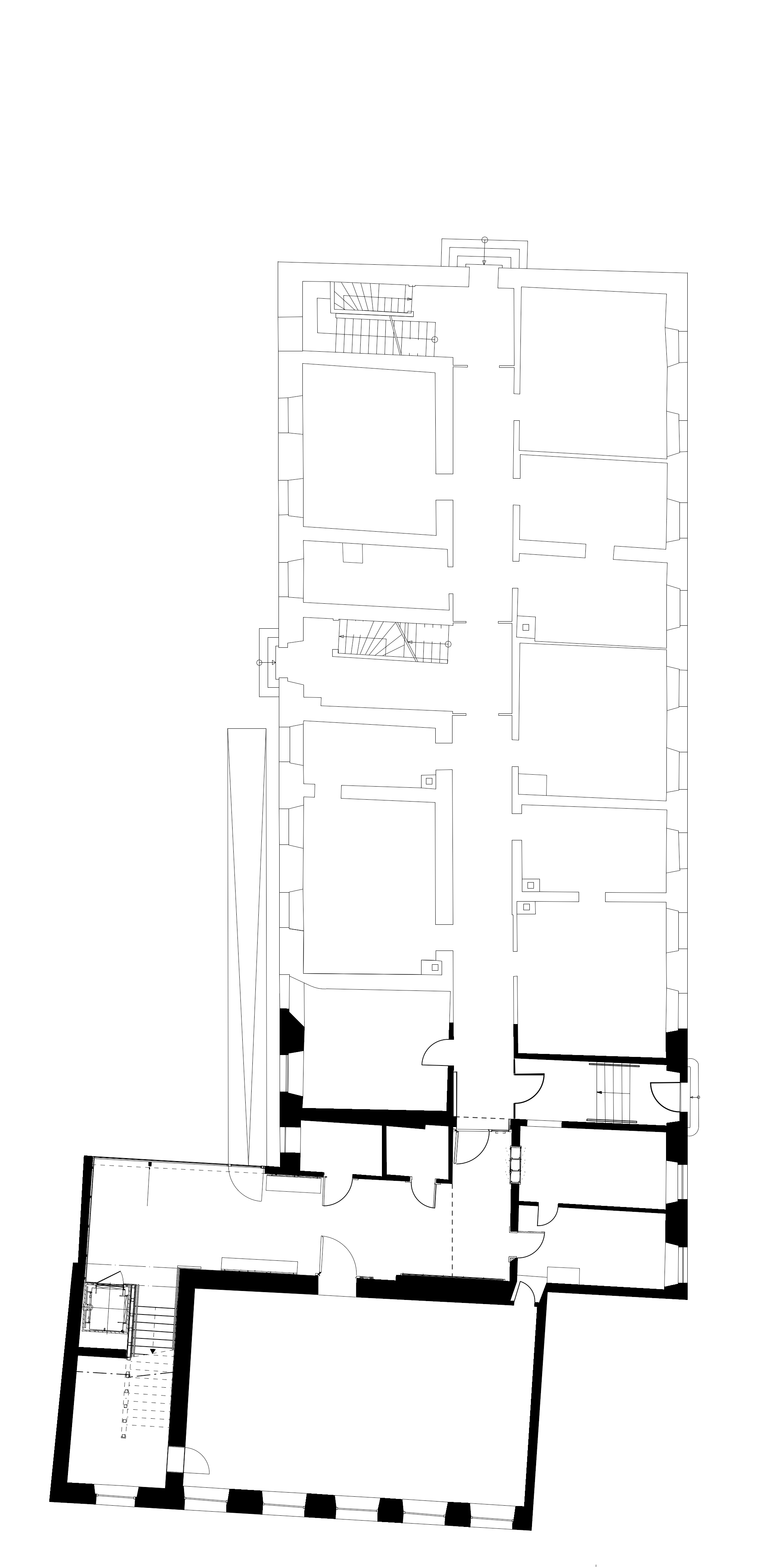
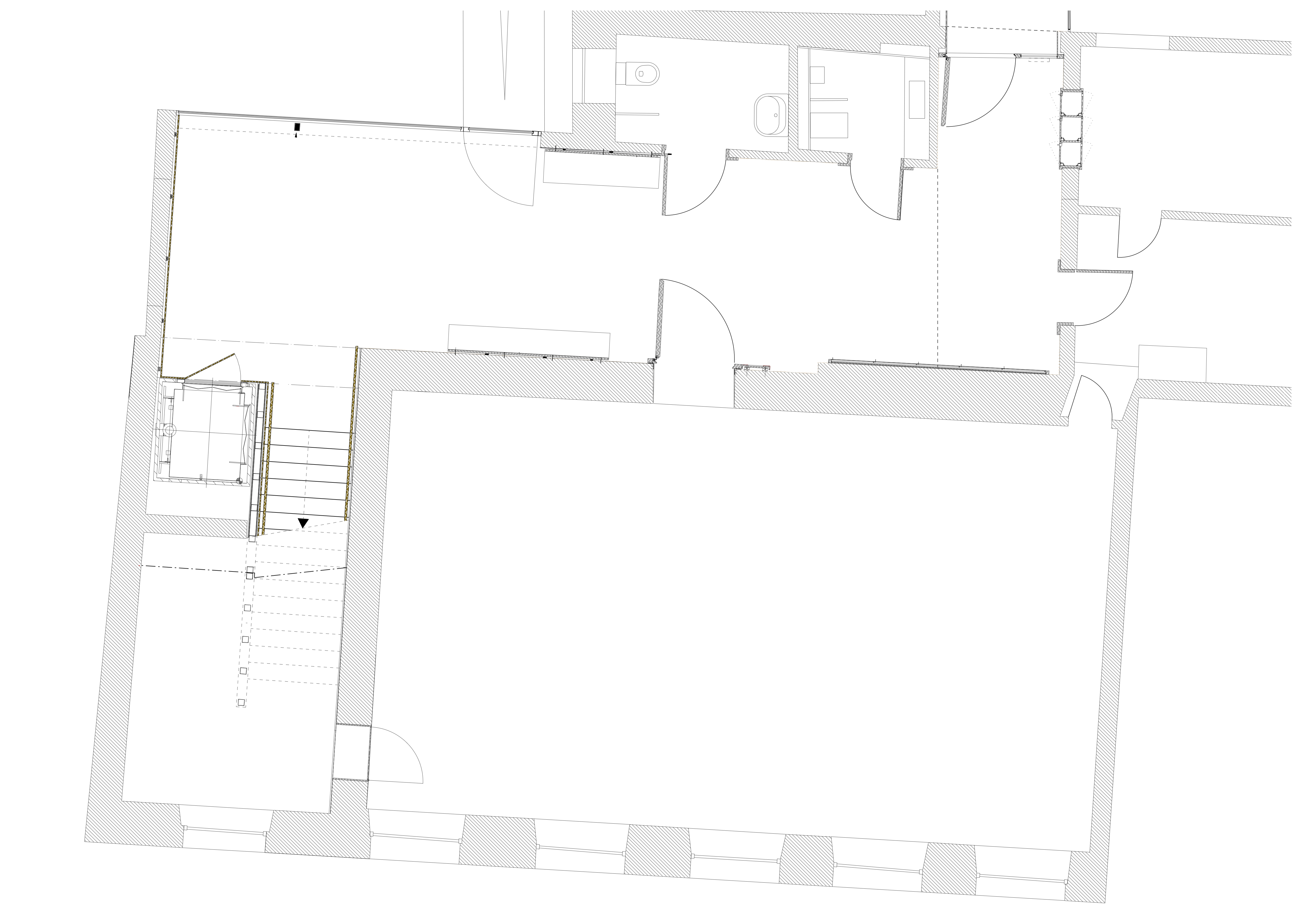
Amtsgericht, Ettlingen
Bauherr
Vermögen und Bau Baden Württemberg, Amt Karlsruhe
Architekt
Langensteiner Bienhaus Architekten
Standort
Ettlingen, Deutschland
Bearbeitung
2018–2019
Mark
© langensteiner bienhaus architekten partnerschaftsgesellschaft mbB, Ettlingen - 2025. Urheberrecht – Alle Rechte vorbehalten. Copyright – all rights reserved.
[Datenschutzerklärung]