︎
langensteiner bienhaus
architekten
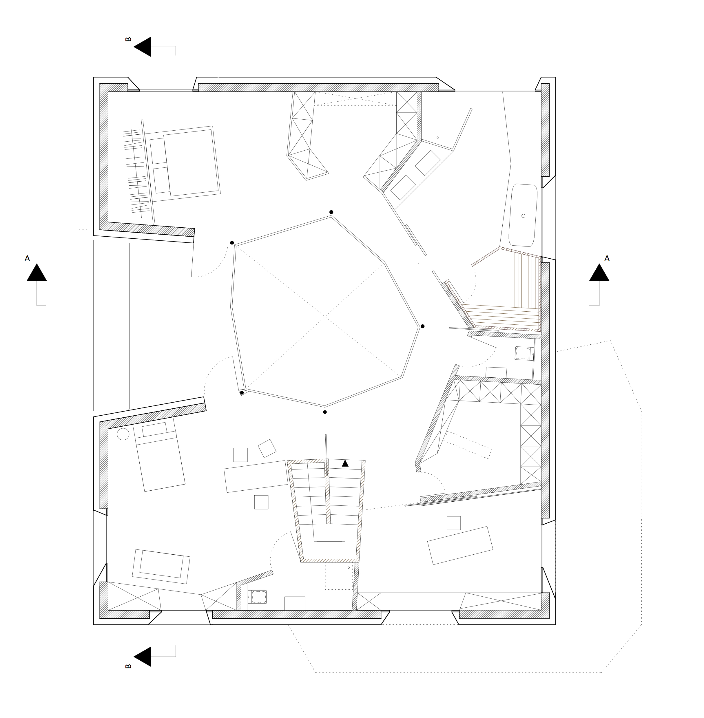
Haus BE-A, Würmersheim
Bauherr
Privat
Architekt
Langensteiner Bienhaus Architekten
Standort
Würmersheim, Deutschland
Bearbeitung
2009
Mark
© langensteiner bienhaus architekten partnerschaftsgesellschaft mbB, Ettlingen - 2025. Urheberrecht – Alle Rechte vorbehalten. Copyright – all rights reserved.
[Datenschutzerklärung]