︎
langensteiner bienhaus
architekten
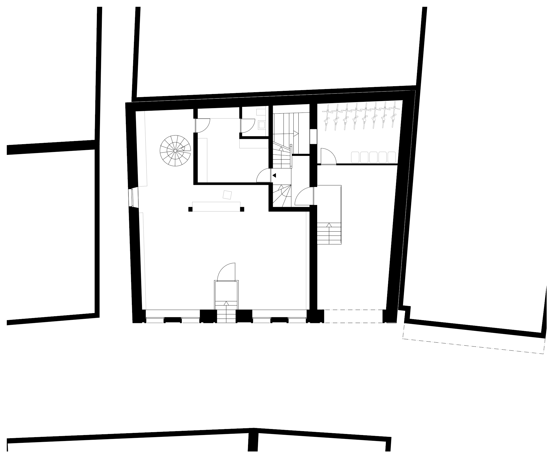
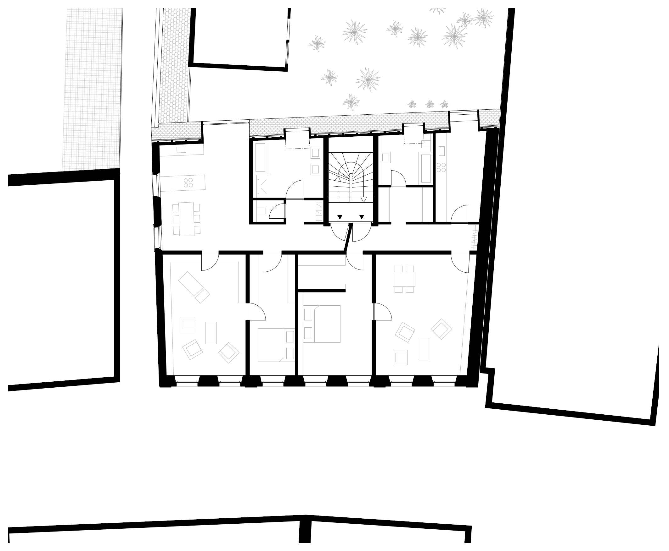
Kulturdenkmal, Ettlingen
Bauherr
Lutz Projektentwicklung GmbH
Architekt
Langensteiner Bienhaus Architekten
Standort
Badener-Tor-Straße, Ettlingen, Deutschland
Bearbeitung
2019–2021
Mark
© langensteiner bienhaus architekten partnerschaftsgesellschaft mbB, Ettlingen - 2025. Urheberrecht – Alle Rechte vorbehalten. Copyright – all rights reserved.
[Datenschutzerklärung]