︎
langensteiner bienhaus
architekten
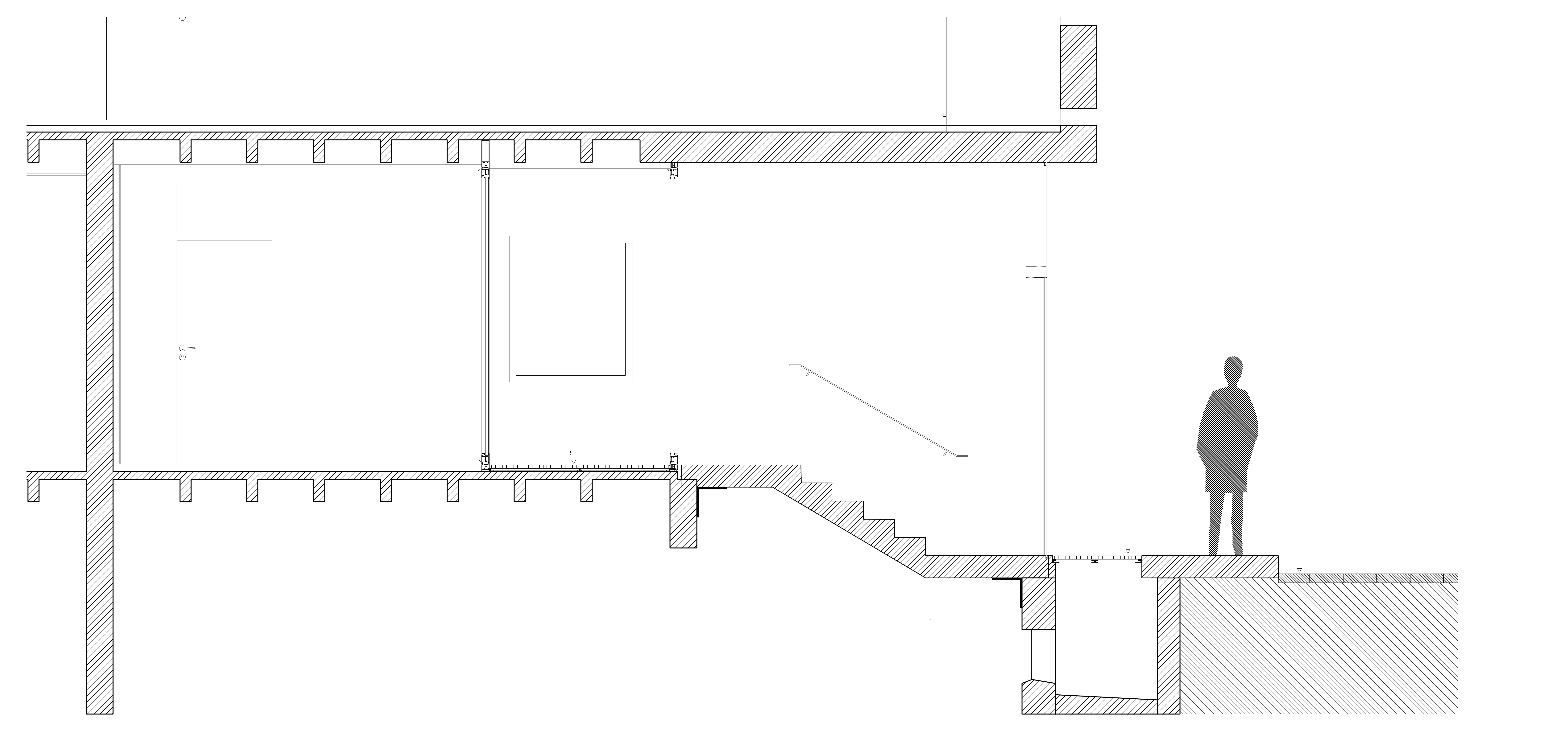
Staatsanwaltschaft, Karlsruhe
Bauherr
Vermögen und Bau Baden Württemberg, Amt Karlsruhe
Architekt
Langensteiner Bienhaus Architekten
Standort
Karlsruhe, Deutschland
Bearbeitung
2017–2018
Mark
© langensteiner bienhaus architekten partnerschaftsgesellschaft mbB, Ettlingen - 2025. Urheberrecht – Alle Rechte vorbehalten. Copyright – all rights reserved.
[Datenschutzerklärung]