︎
langensteiner bienhaus
architekten
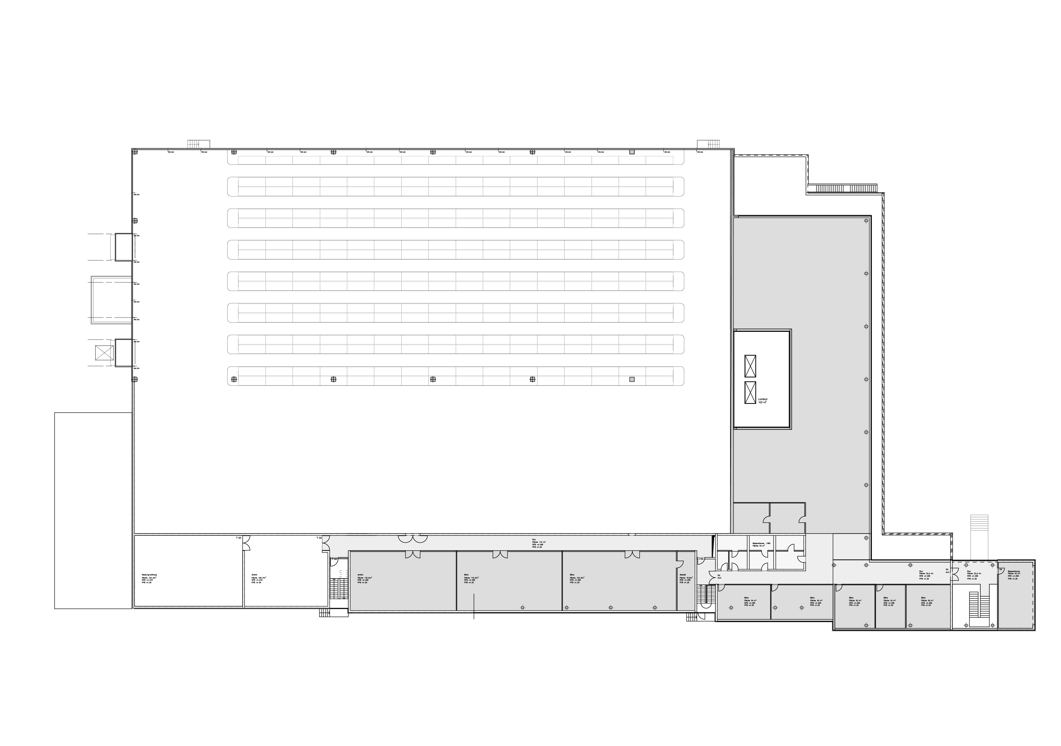
Verteilzentrum, Ludwigsfelde-Genshagen
Bauherr
HATS Handelsgesellschaft mbH
Architekt
Langensteiner Bienhaus Architekten
Standort
Ludwigsfelde-Genshagen, Deutschland
Bearbeitung
2019
3D-Visualisierungen: Daniel Uhrig
Mark
© langensteiner bienhaus architekten partnerschaftsgesellschaft mbB, Ettlingen - 2025. Urheberrecht – Alle Rechte vorbehalten. Copyright – all rights reserved.
[Datenschutzerklärung]